Каминная топка Hitze ARD68x43.S
d77533ab88b5

Доставка
Варианты оплаты
Уже 15 лет для Вас
Очаг — Магазин каминов №1
Лучшие цены
Бесплатный профессиональный замер
Прозрачные сметы
Ясные сроки
Комфорт оплаты
Понимаем любой бюджет
Удобное вам время
Приоритет — безопасность
Примеры работ #Степан_Знает
Видео обзоры
Описание
Характеристики
Общие
Производитель:
Страна-производитель:
Польша
Боковое стекло:
Нет
Гарантия:
5 лет
Конструкция топки:
Материал корпуса:
Материал топки:
Мощность топки:
12 кВт
Остекление:
Стекло с подъемом вверх:
Нет
Производительность
Использование для отопления:
КПД:
78%
Мощность:
12 кВт
Объем отопления:
300 м³
Площадь отопления:
120 м²
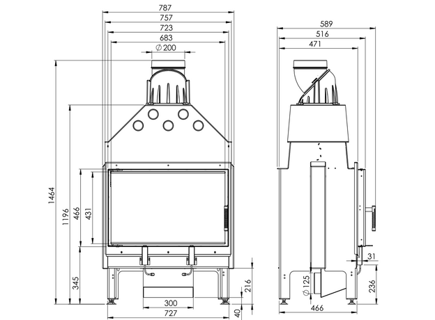
Размеры
Диаметр дымохода:
200 мм
Общая высота:
1464 мм
Общая глубина:
516 мм
Общая ширина:
787 мм
Ширина рамки:
723 мм
Общий вес:
251 кг