Каминная топка Hitze HST54x39.LG
52d15fafe2de

Доставка
Варианты оплаты
Уже 15 лет для Вас
Очаг — Магазин каминов №1
Лучшие цены
Бесплатный профессиональный замер
Прозрачные сметы
Ясные сроки
Комфорт оплаты
Понимаем любой бюджет
Удобное вам время
Приоритет — безопасность
Примеры работ #Степан_Знает
Видео обзоры
Описание
Характеристики
Общие
Производитель:
Страна-производитель:
Польша
Боковое стекло:
Слева
Гарантия:
5 лет
Конструкция топки:
Материал корпуса:
Материал топки:
Мощность топки:
11,2 кВт
Остекление:
Стекло с подъемом вверх:
Да
Производительность
Использование для отопления:
КПД:
75%
Мощность:
11,2 кВт
Объем отопления:
300 м³
Площадь отопления:
120 м²
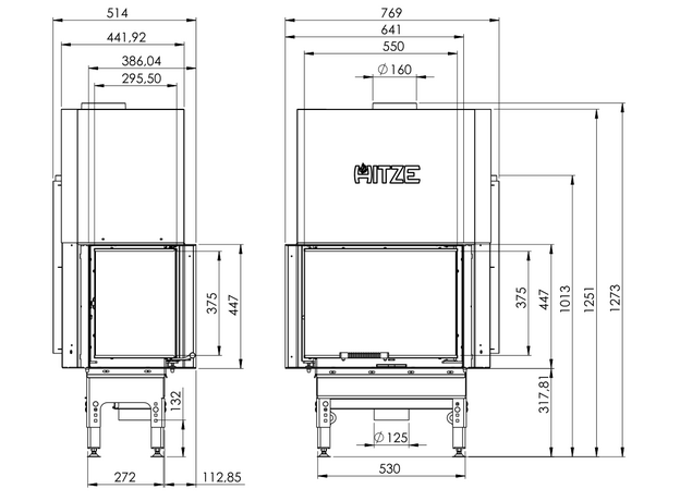
Размеры
Диаметр дымохода:
160 мм
Общая высота:
1273 мм
Общая глубина:
514 мм
Общая ширина:
769 мм
Ширина рамки:
641 мм
Общий вес:
195 кг