Печь камин Contura 870:4
46b898f676de

Доставка
Варианты оплаты
Уже 15 лет для Вас
Очаг — Магазин каминов №1
Лучшие цены
Бесплатный профессиональный замер
Прозрачные сметы
Ясные сроки
Комфорт оплаты
Понимаем любой бюджет
Удобное вам время
Приоритет — безопасность
Примеры работ #Степан_Знает
Видео обзоры
Описание
Характеристики
Общие
Производитель:
Страна-производитель:
Швеция
Цвет:
Чёрный
Гарантия:
5 лет
Материал отделки:
Материал топки:
Производительность
Использование для отопления:
КПД:
81%
Мощность:
5 кВт
Объем отопления:
125 м³
Площадь отопления:
50 м²
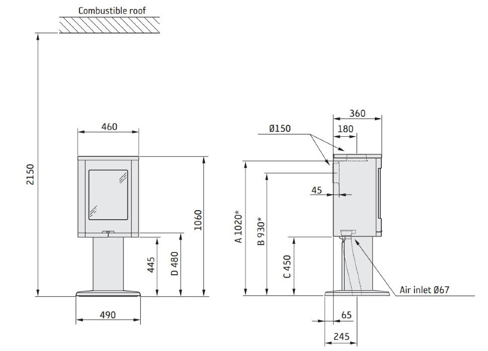
Размеры
Диаметр дымохода:
150 мм
Общая высота:
1060 мм
Общая глубина:
360 мм
Общая ширина:
490 мм
Общий вес:
72 кг