Печь камин Contura 610:5 Style
325bb1337332

Доставка
Варианты оплаты
Уже 15 лет для Вас
Очаг — Магазин каминов №1
Лучшие цены
Бесплатный профессиональный замер
Прозрачные сметы
Ясные сроки
Комфорт оплаты
Понимаем любой бюджет
Удобное вам время
Приоритет — безопасность
Примеры работ #Степан_Знает
Видео обзоры
Описание
Характеристики
Общие
Производитель:
Страна-производитель:
Швеция
Цвет:
Чёрный
Гарантия:
5 лет
Материал дверцы:
Сталь
Материал отделки:
Материал топки:
Тип печи:
Производительность
Использование для отопления:
КПД:
86%
Мощность:
9 кВт
Объем отопления:
225 м³
Площадь отопления:
90 м²
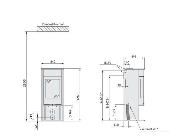
Размеры
Диаметр дымохода:
150 мм
Общая высота:
1260 мм
Общая глубина:
495 мм
Общая ширина:
540 мм
Общий вес:
130 кг