Каминная топка Spartherm Global 2LH 39/58
ee5faefbb2cc

Доставка
Варианты оплаты
Уже 15 лет для Вас
Очаг — Магазин каминов №1
Лучшие цены
Бесплатный профессиональный замер
Прозрачные сметы
Ясные сроки
Комфорт оплаты
Понимаем любой бюджет
Удобное вам время
Приоритет — безопасность
Примеры работ #Степан_Знает
Видео обзоры
Описание
Характеристики
Общие
Производитель:
Страна-производитель:
Германия
Боковое стекло:
Слева
Гарантия:
5 лет
Конструкция топки:
Материал корпуса:
Материал топки:
Мощность топки:
7 кВт
Остекление:
Стекло с подъемом вверх:
Да
Производительность
Использование для отопления:
КПД:
78%
Мощность:
7 кВт
Объем отопления:
175 м³
Площадь отопления:
70 м²
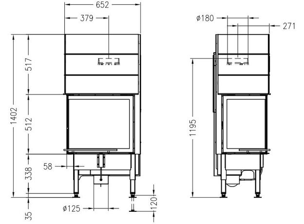
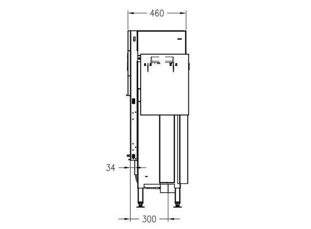
Размеры
Диаметр дымохода:
200 мм
Общая высота:
1402 мм
Общая глубина:
464 мм
Общая ширина:
636 мм
Ширина рамки:
583 мм