Каминная топка Spartherm A-3RL80H
2470dccb3291

Доставка
Варианты оплаты
Уже 15 лет для Вас
Очаг — Магазин каминов №1
Лучшие цены
Бесплатный профессиональный замер
Прозрачные сметы
Ясные сроки
Комфорт оплаты
Понимаем любой бюджет
Удобное вам время
Приоритет — безопасность
Примеры работ #Степан_Знает
Видео обзоры
Описание
Характеристики
Общие
Производитель:
Страна-производитель:
Германия
Боковое стекло:
Трёхсторонняя
Гарантия:
5 лет
Конструкция топки:
Материал корпуса:
Материал топки:
Мощность топки:
12 кВт
Остекление:
Производительность
Использование для отопления:
КПД:
80%
Мощность:
12 кВт
Объем отопления:
300 м³
Площадь отопления:
120 м²
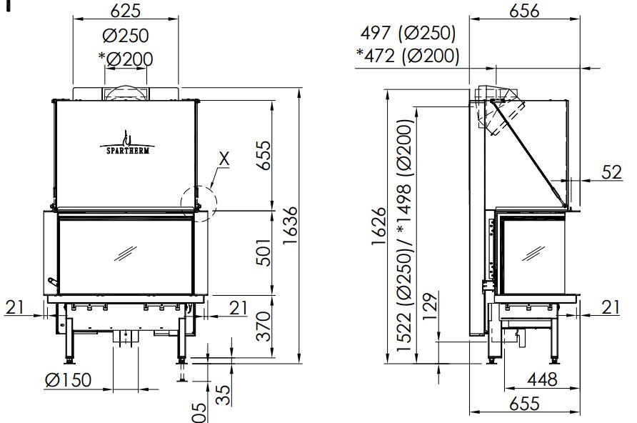
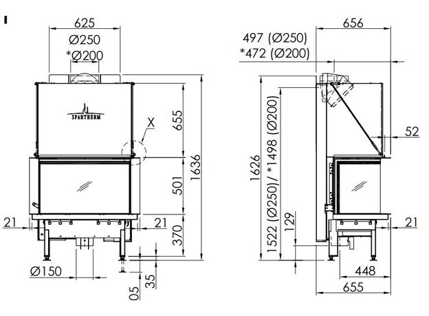
Размеры
Диаметр дымохода:
250 мм
Общая высота:
1626 мм
Общая глубина:
656 мм
Общая ширина:
972 мм
Ширина рамки:
792 мм
Общий вес:
337 кг