Каминная топка Schmid Lina 8770 h
38673897df11

Доставка
Варианты оплаты
Уже 15 лет для Вас
Очаг — Магазин каминов №1
Лучшие цены
Бесплатный профессиональный замер
Прозрачные сметы
Ясные сроки
Комфорт оплаты
Понимаем любой бюджет
Удобное вам время
Приоритет — безопасность
Примеры работ #Степан_Знает
Видео обзоры
Описание
Характеристики
Общие
Производитель:
Страна-производитель:
Германия
Гарантия:
5 лет
Конструкция топки:
Материал корпуса:
Материал топки:
Остекление:
Стекло с подъемом вверх:
Да
Производительность
Использование для отопления:
КПД:
78%
Мощность:
10 кВт
Объем отопления:
250 м³
Площадь отопления:
100 м²
Размеры
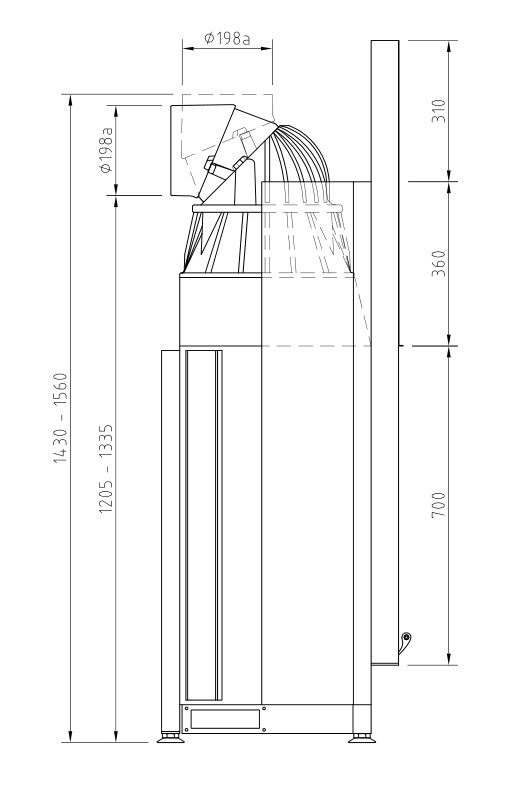
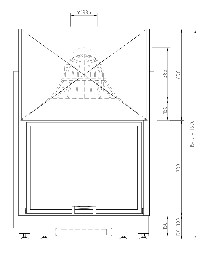
Диаметр дымохода:
250 мм
Общая высота:
1540 мм
Общая глубина:
520 мм
Общая ширина:
1030 мм
Высота рамки:
700 мм
Ширина рамки:
870 мм
Общий вес:
320 кг