Каминная топка Kratki MBM 10 L/BS
9a6c2ca01d9c

Доставка
Варианты оплаты
Уже 15 лет для Вас
Очаг — Магазин каминов №1
Лучшие цены
Бесплатный профессиональный замер
Прозрачные сметы
Ясные сроки
Комфорт оплаты
Понимаем любой бюджет
Удобное вам время
Приоритет — безопасность
Примеры работ #Степан_Знает
Видео обзоры
Описание
Характеристики
Общие
Производитель:
Страна-производитель:
Польша
Боковое стекло:
Слева
Гарантия:
5 лет
Конструкция топки:
Материал корпуса:
Материал топки:
Мощность топки:
10 кВт
Остекление:
Стекло с подъемом вверх:
Нет
Производительность
Использование для отопления:
КПД:
81%
Мощность:
10 кВт
Объем отопления:
250 м³
Площадь отопления:
100 м²
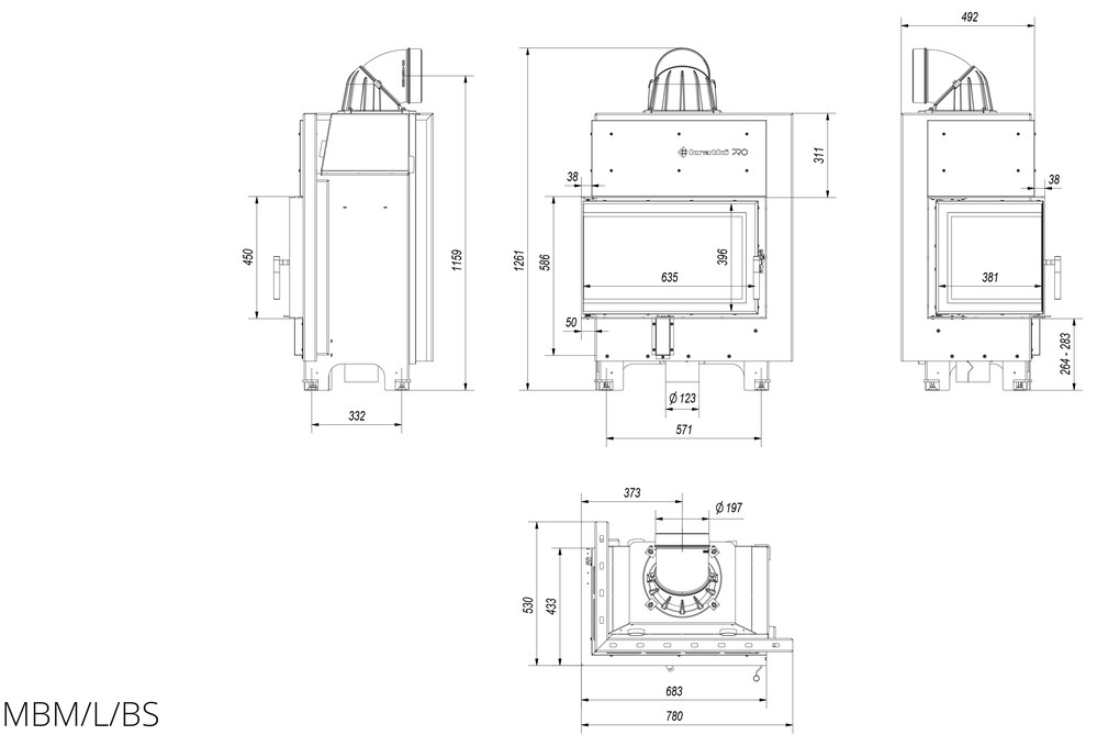
Размеры
Диаметр дымохода:
200 мм
Общая высота:
1261 мм
Общая глубина:
525 мм
Общая ширина:
775 мм
Высота рамки:
450 мм
Ширина рамки:
635 мм
Общий вес:
174 кг