Каминная топка Hoxter ECKA 50/35/45W
0004a615f257

Доставка
Варианты оплаты
Уже 15 лет для Вас
Очаг — Магазин каминов №1
Лучшие цены
Бесплатный профессиональный замер
Прозрачные сметы
Ясные сроки
Комфорт оплаты
Понимаем любой бюджет
Удобное вам время
Приоритет — безопасность
Примеры работ #Степан_Знает
Видео обзоры
Описание
Характеристики
Общие
Производитель:
Страна-производитель:
Чехия
Гарантия:
5 лет
Конструкция топки:
Материал корпуса:
Материал топки:
Остекление:
Стекло с подъемом вверх:
Нет
Производительность
Использование для отопления:
КПД:
80%
Мощность:
7,5 кВт
Объем отопления:
200 м³
Площадь отопления:
80 м²
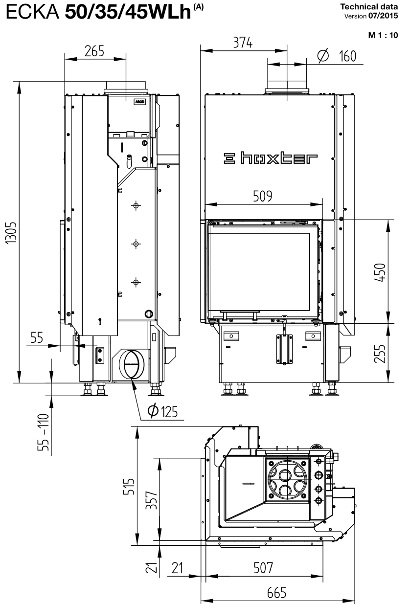
Размеры
Диаметр дымохода:
150 мм
Общая высота:
1305 мм
Общая глубина:
419 мм
Общая ширина:
600 мм
Высота рамки:
450 мм
Ширина рамки:
500 мм
Общий вес:
168 кг