Каминная топка Hitze HST68x43.LG
de0fc8e40404

Доставка
Варианты оплаты
Уже 15 лет для Вас
Очаг — Магазин каминов №1
Лучшие цены
Бесплатный профессиональный замер
Прозрачные сметы
Ясные сроки
Комфорт оплаты
Понимаем любой бюджет
Удобное вам время
Приоритет — безопасность
Примеры работ #Степан_Знает
Видео обзоры
Описание
Характеристики
Общие
Производитель:
Страна-производитель:
Польша
Боковое стекло:
Слева
Гарантия:
5 лет
Конструкция топки:
Материал корпуса:
Материал топки:
Мощность топки:
13,2 кВт
Остекление:
Стекло с подъемом вверх:
Да
Производительность
Использование для отопления:
КПД:
79%
Мощность:
13,2 кВт
Объем отопления:
350 м³
Площадь отопления:
140 м²
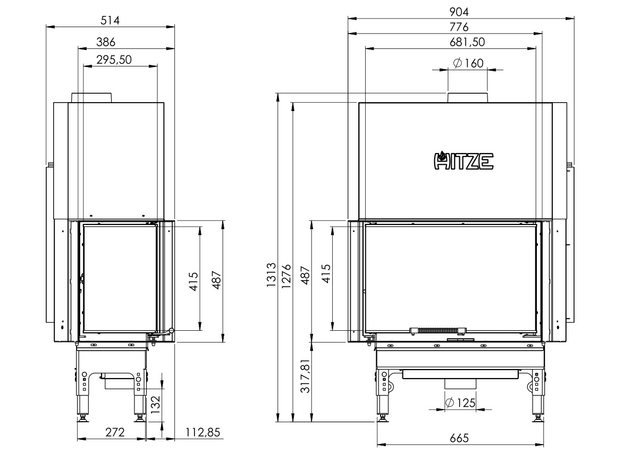
Размеры
Диаметр дымохода:
160 мм
Общая высота:
1313 мм
Общая глубина:
514 мм
Общая ширина:
904 мм
Ширина рамки:
776 мм
Общий вес:
225 кг