Каминная топка Hitze ALAQS90x41.RG
81563636c8c9

Доставка
Варианты оплаты
Уже 15 лет для Вас
Очаг — Магазин каминов №1
Лучшие цены
Бесплатный профессиональный замер
Прозрачные сметы
Ясные сроки
Комфорт оплаты
Понимаем любой бюджет
Удобное вам время
Приоритет — безопасность
Примеры работ #Степан_Знает
Видео обзоры
Описание
Характеристики
Общие
Производитель:
Страна-производитель:
Польша
Боковое стекло:
Справа
Гарантия:
5 лет
Конструкция топки:
Материал корпуса:
Материал топки:
Мощность топки:
21 кВт
Остекление:
Стекло с подъемом вверх:
Да
Производительность
Использование для отопления:
КПД:
81,5%
Мощность:
21 кВт
Объем отопления:
525 м³
Площадь отопления:
210 м²
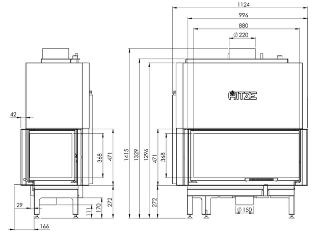
Размеры
Диаметр дымохода:
220 мм
Общая высота:
1415 мм
Общая глубина:
600 мм
Общая ширина:
1124 мм
Ширина рамки:
996 мм
Общий вес:
312 кг