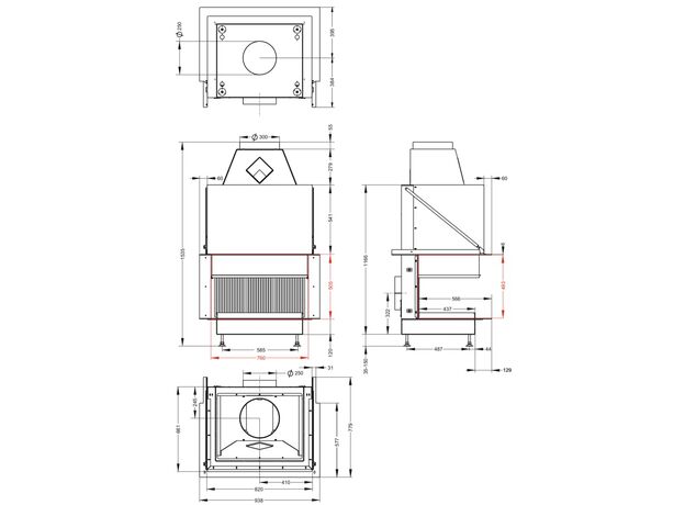
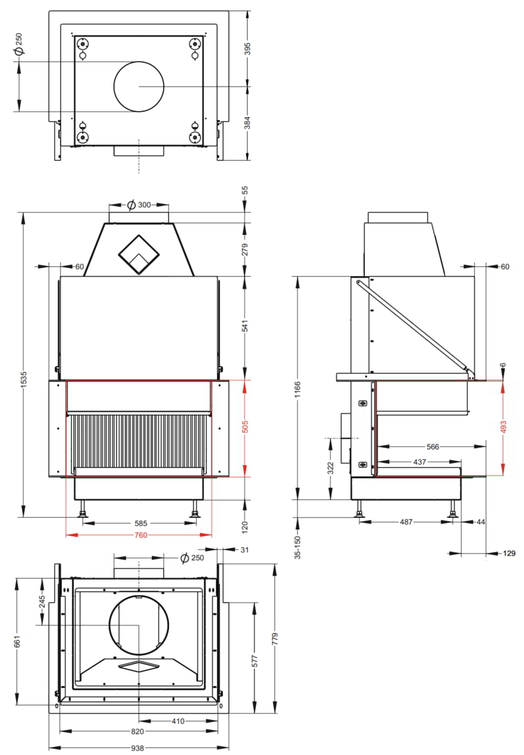
Открытая каминная топка Астов с сеткой О3С 75\50
a3914513afe1

Доставка
Варианты оплаты
Уже 15 лет для Вас
Очаг — Магазин каминов №1
Лучшие цены
Бесплатный профессиональный замер
Прозрачные сметы
Ясные сроки
Комфорт оплаты
Понимаем любой бюджет
Удобное вам время
Приоритет — безопасность
Примеры работ #Степан_Знает
Видео обзоры
Характеристики
Общие
Производитель:
Страна-производитель:
Россия
Боковое стекло:
Трёхсторонняя
Гарантия:
5 лет
Конструкция топки:
Материал корпуса:
Материал топки:
Остекление:
Открытая топка
Стекло с подъемом вверх:
Да
Производительность
Использование для отопления:
Размеры
Диаметр дымохода:
300 мм
Общая высота:
1535 мм
Общая глубина:
779 мм
Общая ширина:
938 мм
Высота рамки:
505 мм
Ширина рамки:
760 мм
Общий вес:
323 кг