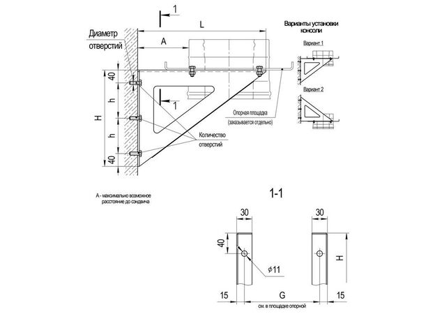
Консоль K8 L=1300 d130/230 201-2
a6c0fd726804

Доставка
Варианты оплаты
Уже 15 лет для Вас
Очаг — Магазин каминов №1
Лучшие цены
Бесплатный профессиональный замер
Прозрачные сметы
Ясные сроки
Комфорт оплаты
Понимаем любой бюджет
Удобное вам время
Приоритет — безопасность
Примеры работ #Степан_Знает
Описание
Характеристики
Общие
Производитель:
Страна-производитель:
Россия
Внутренний диаметр:
130 мм
Гарантия:
10 лет
Марка стали:
Материал дымохода:
Нержавеющая сталь
Назначение дымохода:
- Дымоходы для каминов
- Дымоходы для печей
Размер:
1300 мм
Тип элемента дымохода:
Толщина стенки:
2
Особенности
Возможные цвета:
Выбор RAL
Цвет дымохода:
Нержавеющая сталь